menu

高知市の不動産・賃貸・売買情報なら【スウィング不動産】

高知市のお部屋探しは

株式会社スウィング不動産

〒780-0972 高知市中万々70番地24

お客様専用フリーダイヤル
0120-05-4470
その他:088-822-4470(9:00~18:00)
定休日:火曜日、年末年始、GW、お盆

福井町

■50m程の場所には低地に繋がる階段があり、500m圏内にはバス停や買い物施設など日々の生活に便利です。
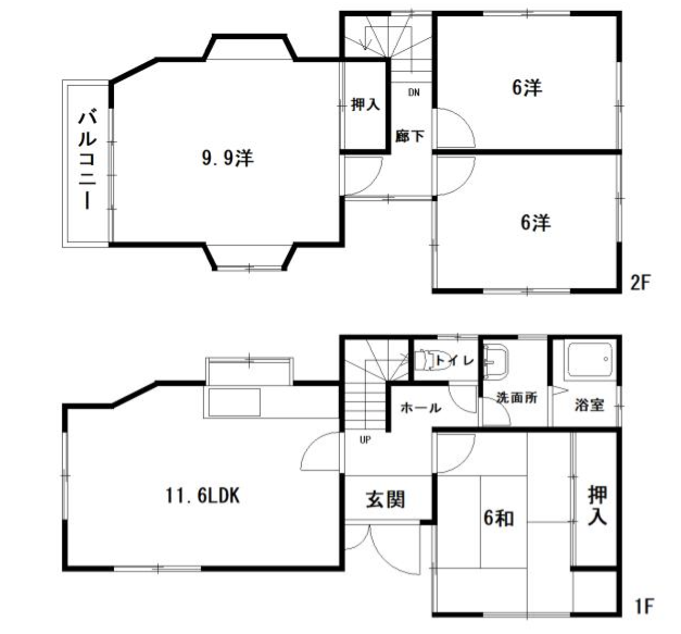
■4LDK・全居室6帖以上でゆとりのある居住スペースです。
■ガーデニングや家庭菜園などを楽しむことができるゆとりある広さのお庭があり、日当たり・風通しともに良好

外観
外観
間取り図
間取り図
お問い合わせNo中0095
所在地福井町
階数2階
金額1,080万円
建物構造木造2階建て
土地面積129.79㎡
坪数39.26坪
建物面積88.6㎡
タイプ4LDK
間取り詳細和室6帖/洋室9.9帖/洋室6帖/洋室6帖/LDK11.6帖
用途地域第一種中高層
建蔽/容積率60/200%
地目宅地
都市計画市街化区域
交通福井バス停徒歩5分
駐車場1台
築年月平成3年11月
取引態様媒介