南万々
■角地で開放感のあるフルリフォーム済みの3LDKのお家です。
■大きなFIX窓から日差しが入る室内物干し付き!
■リビングの天井には間接照明が付いており温かみのある柔らかな光が素敵な空間を演出します♪ライティングレール付きですので、スポットライトやペンダントライトなど自分好みにカスタマイズできます!
■長さのある洗面台は2人が横並びに使用でき、朝の忙しい時間帯でも同時に身支度ができます。
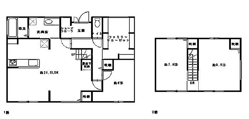
■広々としたファミリークローゼットにはハンガーパイプや中段付き!コート類や布団、季節家電などたっぷり収納できます
■トイレには機能的なニッチが付いてます。トイレットペーパーはもちろん、掃除用具や小説も入れれます♪■全居室南向きで6帖以上の広さがあります!
| お問い合わせNo | 中0170 |
|---|---|
| 所在地 | 南万々 |
| 階数 | 2階 |
| 金額 | 4,580万円 |
| 建物構造 | 木造2階建て |
| 土地面積 | 174.17㎡ |
| 坪数 | 52.68坪 |
| 建物面積 | 119.57㎡ |
| タイプ | 3LDK |
| 間取り詳細 | 間取り図参照 |
| 用途地域 | 第一種中高層 |
| 建蔽/容積率 | 60/200% |
| 地目 | 宅地 |
| 現況 | 居住中 |
| 交通 | 円行事分岐バス停徒歩3分 |
| 駐車場 | 2台 |
| 築年月 | 昭和51年6月 |
| 取引態様 | 媒介 |



