福井町
■小さな庭付き!ガーデニングも楽しめる5DKの家
■階段下には造作収納がありますが、作業台としても使用できそうです♪
■南側に広縁があり、ゆったりくつろぐことができます。
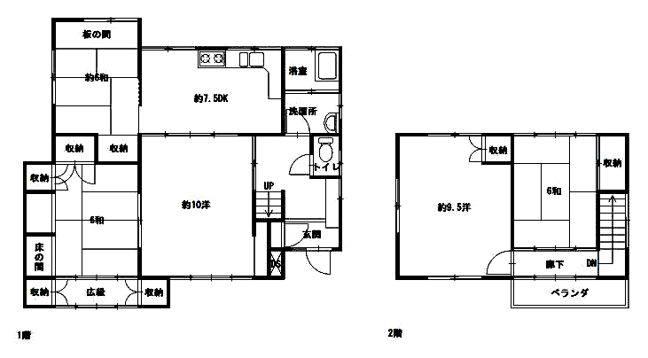
■部屋数が多く、各個人のお部屋の確保はもちろん、在宅ワーク用の仕事部屋や趣味の部屋、客室など多用途に活用できます!1階の約10帖の洋室は扉を開ければ広々としたリビングとして利用できます
■車は2台駐車可能!1台分はカーポート付ですので、雨や直射日光からお車の劣化を防ぎます。お庭を解体すれば3台駐車可能です
■洪水・津波浸水想定区域、土砂災害警戒区域の全てエリア外です。
■旭ヶ丘保育園まで徒歩9分の距離ですので、朝の忙しい時間帯でもゆとりを持って準備ができ、毎日の通園もしやすいです。くだけ岩公園まで徒歩2分!ブランコなどの遊具があり、遊び場として利用しやすい
| お問い合わせNo | 中0173 |
|---|---|
| 所在地 | 福井町 |
| 階数 | 2階 |
| 金額 | 1,440万円 |
| 建物構造 | 木造2階建て |
| 土地面積 | 161.28㎡ |
| 坪数 | 48.78坪 |
| 建物面積 | 110.70㎡ |
| タイプ | 5DK |
| 間取り詳細 | 間取り図参照 |
| 用途地域 | 第一種低層住宅 |
| 建蔽/容積率 | 60/100% |
| 地目 | 宅地 |
| 交通 | 旭ヶ丘団地バス停徒歩8分 |
| 駐車場 | 2台 |
| 築年月 | 昭和51年2月 |
| 取引態様 | 媒介 |



