menu

高知市の不動産・賃貸・売買情報なら【スウィング不動産】

高知市のお部屋探しは

株式会社スウィング不動産

〒780-0972 高知市中万々70番地24

お客様専用フリーダイヤル
0120-05-4470
その他:088-822-4470(9:00~18:00)
定休日:火曜日、年末年始、GW、お盆

万々

量販店や小学校も近く便利なエリア。

外観
外観
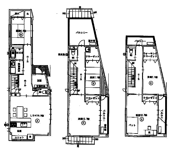
間取り図
間取り図
お問い合わせNo中0178
所在地万々
階数3階
金額2,880万円
建物構造鉄骨3階建て
土地面積128.33㎡
坪数38.81坪
建物面積172.15㎡
タイプ5LDK
間取り詳細間取り図参照
用途地域第二種住居
建蔽/容積率60/200%
地目宅地
都市計画市街化区域
現況居住中
交通万々公民館前バス停徒歩1分
築年月平成17年6月
取引態様媒介